売土地 柏市中新宿1丁目

【外観】の画像

【外観】 -

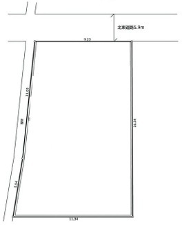
【土地図】の画像

【土地図】 -

【外観】の画像 外観
【土地図】の画像 土地図

売地

価格
-円
所在地
千葉県柏市中新宿1丁目 MAP
交通
常磐緩行線「北小金」駅徒歩19分
土地面積(坪数)
166.78㎡ (50.45坪)
建ぺい率
60%
容積率
200%

まずはご相談ください!

0120-857-960

営業時間
9:00~18:00
定休日
水曜日

担当者スタッフより

おすすめポイント

徒歩30分の距離に柏市立光ケ丘中学校があるのも魅力。経済面での圧迫が相場より低く、その分心に余裕が生まれる1,980万円の土地です。地元を知り尽くしているスタッフの揃う当社だから、安心感が違います。ぜひお客様のこだわりを教えてください。住まいにご満足いただけるよう、全力でお手伝いいたします。

ぜひ一度見ていただきたい、「売土地 柏市中新宿1丁目」です。徒歩30分の距離に柏市立光ケ丘中学校があるのも魅力。購入価格1,980万円と好条件です。ぜひご検討してみてはいかがでしょうか。好きなデザインで好きな住まいが建てられる建築条件なし。不動産のプロである当社が、お客様のこだわりにお応えいたします。まずはお客様の住まいに求める条件や夢をお聞かせください。お問い合わせをお待ちしております。

まずはご相談ください!

営業時間
9:00~18:00
定休日
水曜日

物件概要

物件番号:97608454 /  情報更新日:2025年12月25日 /  更新予定日:2026年01月01日 /  取引条件の有効期限:2026年01月01日 情報の見方
価格(坪単価) -円 (39.25万円) 所在地 千葉県柏市中新宿1丁目 MAP
交通
    常磐緩行線「北小金」駅徒歩19分
    常磐緩行線「南柏」駅徒歩10分
土地面積(坪数) 166.78㎡(50.45坪)
私道負担面積 /
セットバック
- / - 現況 -
土地権利 所有権 建築条件
地目 / 地勢 宅地 / - 接道状況 -(北東 公道 5.9m)
建ぺい率 / 容積率 60% / 200% 最適用途 -
用途地域 第一種低層住居専用 都市計画 市街化区域
土地の敷金 / 保証金 - 借地料 / 借地期間 - / -
傾斜地部分面積 - 路地状敷地 -
取引態様 仲介 国土法届出要否 不要
引渡時期 即時 引渡条件 -
法令上の制限 - 販売区画数 / 総区画数 - / -
設備条件
  • 閑静な住宅地
  • 公営水道
  • 公共下水
備考 ぜひ一度見ていただきたい、「売土地 柏市中新宿1丁目」です。徒歩30分の距離に柏市立光ケ丘中学校があるのも魅力。1,980万円のこちらの土地は、経済的かつ好条件です。住まい探しのノウハウは当社にお任せください。知識と経験豊富な当社スタッフが、親切丁寧にお客様の不安や疑問を解消いたします。

地図

※地図上に表示される物件の位置は付近住所に所在することを表すものであり、実際の物件所在地とは異なる場合がございます。

まずはご相談ください!

営業時間
9:00~18:00
定休日
水曜日

取り扱い店舗(株式会社タクミ ハウスドゥ柏高柳)

株式会社タクミ ハウスドゥ柏高柳の画像

所在地
千葉県柏市高柳1139−1 
電話番号
0120-857-960
営業時間
9:00~18:00
定休日
水曜日

まずはご相談ください!

営業時間
9:00~18:00
定休日
水曜日

売却査定

お問い合わせ